cana form logo
Private House Private House project Private House construction project Private House architectural design Private House facade design Private House ifc drawings

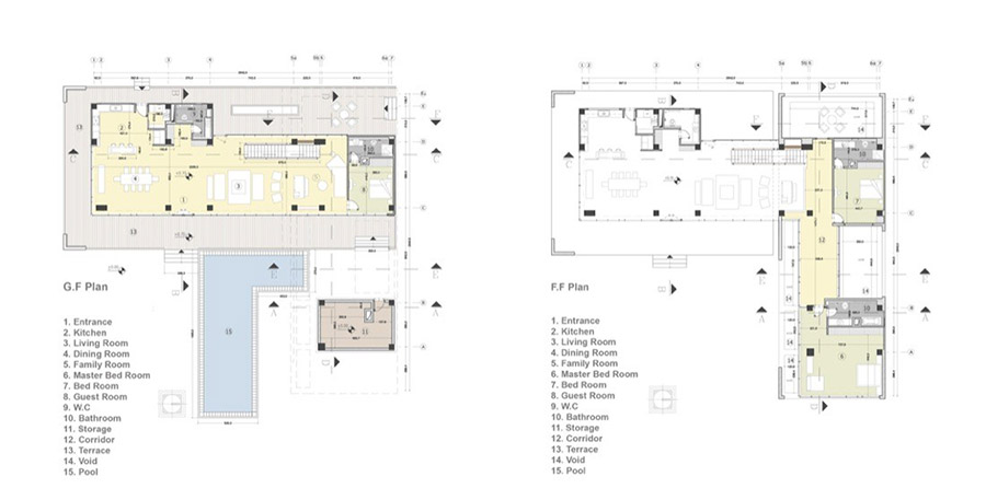
Private House

Prev Project Next Project
cana form logo
Linkedin Facebook Instagram Youtube
  • Back to top
  • About
    • Company
    • Team
  • Projects
  • Services
  • Blog
  • Contact
  • About
    • Company
    • Team
  • Projects
  • Services
  • Blog
  • Contact

© 2025 Cana Form | Privacy Policy | Terms Of Use

CANA FORM
Menu
  • Home
  • About Us
    • Company
    • Team
  • Our Services
  • Projects
  • Contact Us
Privacy Policy Terms of Use