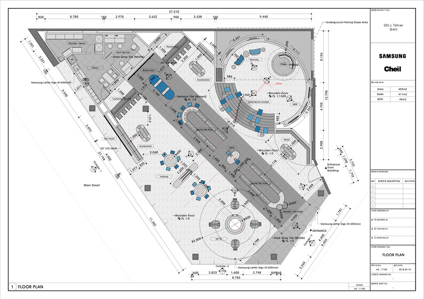
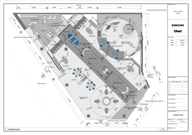
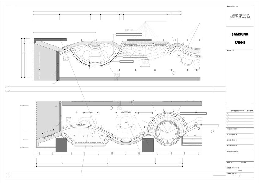
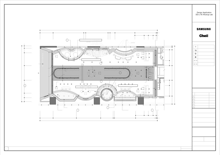
Located in Tehran, the Samsung Cheil Showroom was the first and largest Samsung retail concept of its kind in Iran. The project introduced a new brand direction for Samsung — bringing all product categories together under one roof through a futuristic and ultra-contemporary design.
Area: 1 200 m2
Location: Tehran & Mumbai
Type: Commercial


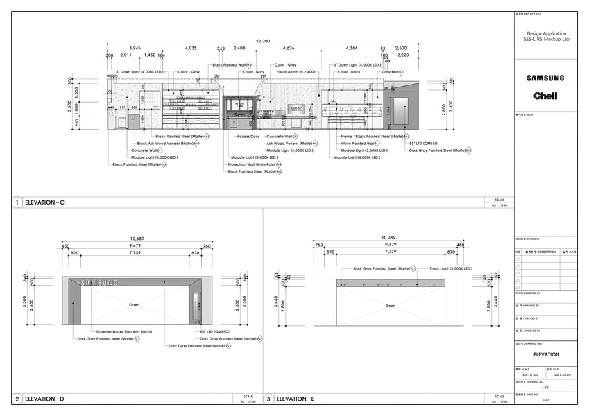
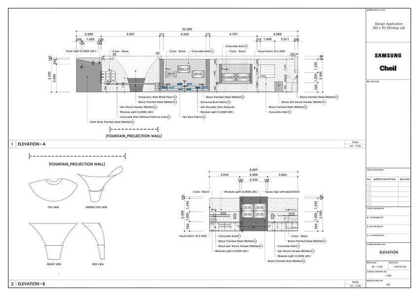
In collaboration with Cyan Company, Cana Form provided complete fit-out execution services, including architectural and interior design, IFC drawings, and technical support. All detail drawings and joinery solutions were developed by our team, ensuring precision, innovation, and seamless functionality.